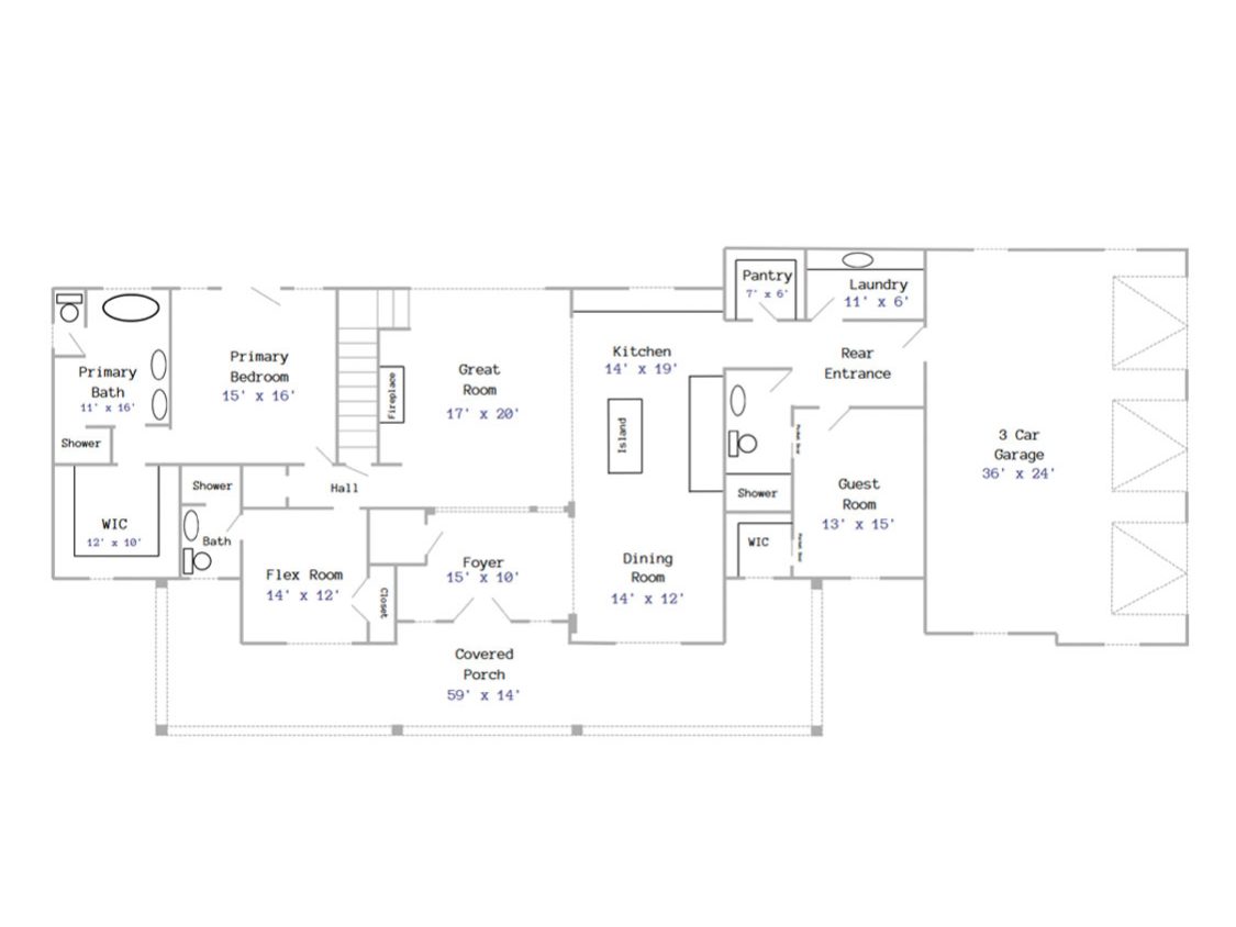
The Rowan delivers 3,461 sq. ft. of luxury living with 4 bedrooms, 3.5 bathrooms, a loft, and a 3-car garage. Starting in the mid/upper $700s, this plan offers expansive gathering spaces, private retreats, and an additional loft for flexible use. Designed for homeowners who love to entertain or need extra room for family, The Rowan blends upscale features with functional layouts. It’s the perfect choice for those seeking a spacious new home that combines everyday comfort with timeless elegance.


































