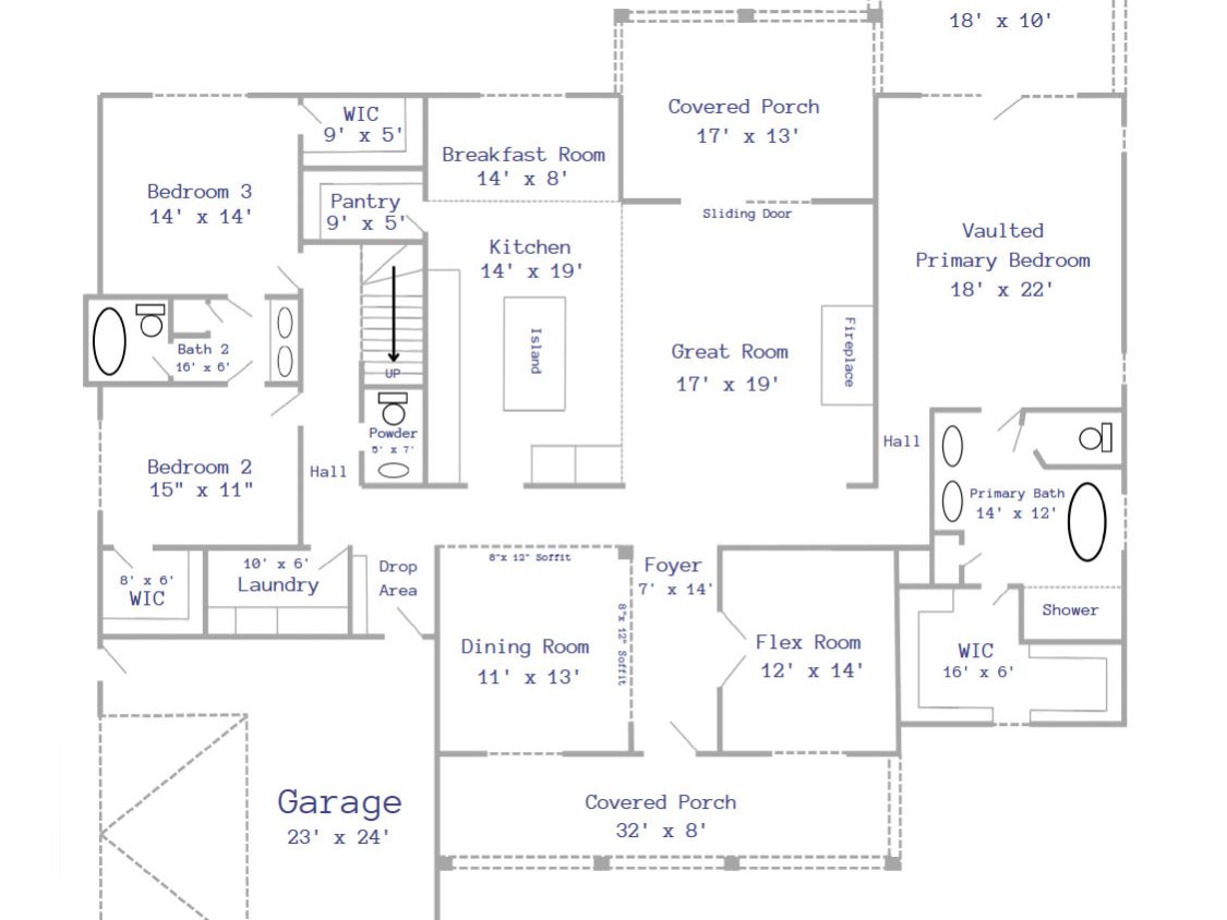
The Dylan by Karrus Homes offers 3,433 sq. ft. of thoughtfully designed living space with 3 bedrooms plus a bonus room, 3 bathrooms, and a 2-car garage. Starting in the mid/upper $700s, this home is perfect for families seeking a spacious and modern layout. The open-concept design features a large great room, gourmet kitchen, and dining area ideal for entertaining or everyday life. The bonus room provides flexible space for a home office, media room, or guest suite. The luxurious owner’s suite includes a spa-inspired bathroom and walk-in closet, while additional bedrooms offer comfort and privacy for family members. With its attention to detail, modern finishes, and functional design, The Dylan is a standout choice for a high-quality new construction home.












































